This approximately 296 acres is at THE prime location in the Santa Ynez Valley. Varied terrain primarily composed of rolling to gently sloping land is spotted with historic oak trees and consists of two legal parcels. In the Happy Canyon AVA in Santa Barbara County’s wine region, this ranch is ideal for establishing a premium Bordeaux varietal vineyard.
Small towns in the Valley have multiple fine dining restaurants, catering to the Valley’s vibrant gourmet food and winery industry.
The ranch has fenced and cross fenced pastures for grazing livestock. Horse facilities include a 5 stall center-isle barn with wash rack and tack room, a restored vintage barn with 3 stalls, hay and equipment storage, a loft and an entertainment area complete with bar. There are irrigated pastures, dressage and cutting arenas and a hot walker. A large open pasture has been a “cowboy” polo field.
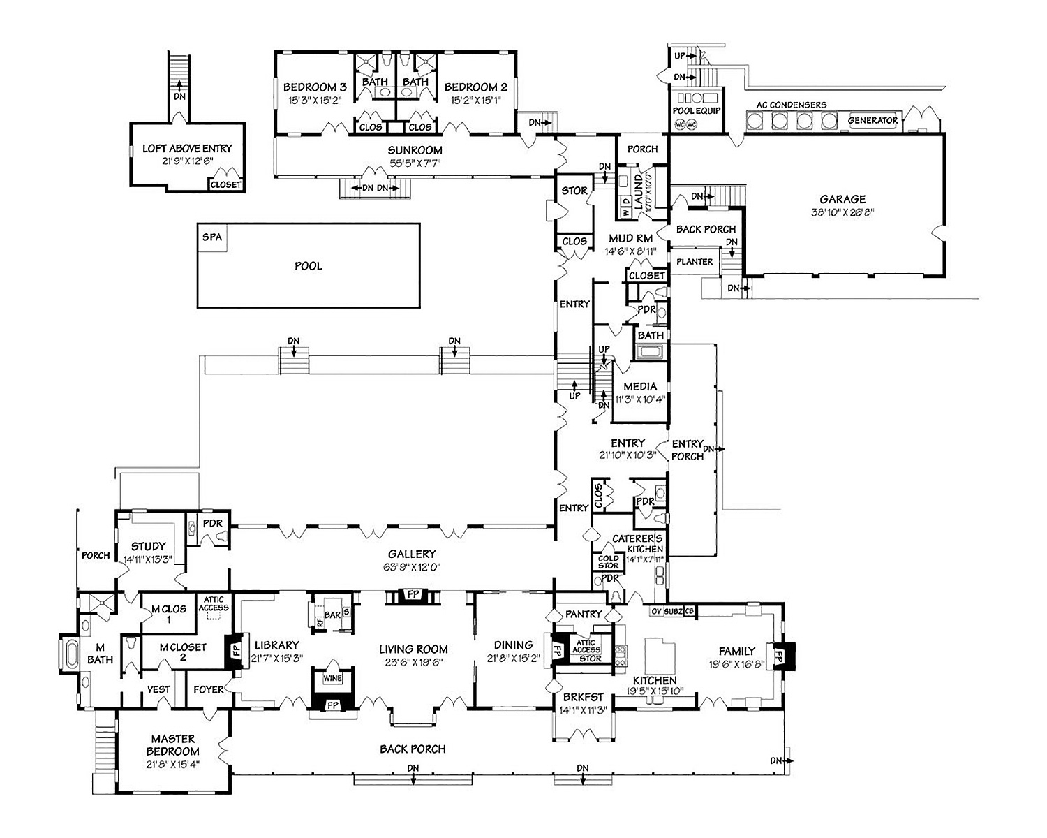
With expansive vistas of untouched California open space, newly completed in 2009, the main residence is approximately 8,200 square feet with 4 bedrooms, 4 full and 2 half baths. With 5 fireplaces, quality finishes and cabinetry throughout, the home features a fully appointed gourmet kitchen that opens to a spacious family room, a server’s back kitchen, butler’s pantry, formal living and dining rooms, a study, wine storage room, a wet bar and a light filled gallery accessing an inner courtyard designed for outdoor dining, There is a pool and spa. The master suite has his and hers bathrooms and closets plus an office. A covered porch provides outdoor living and entertaining space surrounding a fireplace.
Guest facilities are extensive. A renovated 1920s cottage has living and dining rooms, kitchen, mud room and 2 bedrooms and 1 bath. Additionally, there is a 2 bedroom cottage with living room and bathroom.
A getaway from the major metropolitan areas, this ranch is about 2 hours north from Los Angeles and about 30 minutes from the City of Santa Barbara on the American Riviera via U.S. 101 and HWY 154. Santa Ynez Valley Airport’s 2900 foot airstrip accommodates smaller jets.
Address:
1162 Alisos Road , Santa Ynez, CA 93460
County:
Santa Barbara
Location:
Happy Canyon at Alisos Road, Santa Ynez Valley, California
Viticulture Area:
Happy Canyon AVA/Appellation
Square Footages (approximate):
Main House: 8200+/- sq. ft., 4 Bedrooms, 4 full & 2 half baths
Guest House #1: 1411+/- sq. ft. 2 bedrooms, 1 bath
Guest House #2: 633+/- sq. ft., 2 bedrooms, 1 bath
Main Residence
- Amenities Include:
- Limestone, oak, carpet and tile floors
- 5 fireplaces (Family & Dining Rooms, Library, Gallery, Porch)
- 3 Powder Rooms
- 4 Full Bathrooms
- Living Areas and Rooms:
- Gallery
- Bathed in light by windows and French doors
- Opens to:
- Public rooms
- Courtyard with a Fruitless Mulberry tree arbor dining
area
- Sitting area around fireplace
- Covered Back Porch
- French door access from Kitchen, Breakfast Room, Living
Room, Library and Master Bedroom
- Fireplace and living area
- Dining areas
- Vistas looking over ranchs rolling oak tree spotted land
- Interior Courtyard
- Fruitless Mulberry arbor covered outdoor dining area
- Pool and spa
- Formal Living Room
- Library
- Bar
- Mahogany counters
- Sink
- 2 Refrigerator Drawers
- Wine Storage
- Adjacent to Bar
- Fitted for 1000+/- bottle capacity
- Epicurean Area
- Kitchen:
- Open to the Family Room
- Walnut Center Island
- Applicances
- Wolf Range - 6 burners, griddle, double oven
- Wolf Built in oven, convection microwave, warming drawer
- Sub Zero Professional refrigerator and freezer
- Meile Dishwasher
- Adjacent Caterer’s Kitchen:
- Double sink
- Stainless steel counters
- Meile dishwasher
- Wolf double warming drawer
- Wolf microwave
- Dry goods pantry
- Powder room
- Butler’s Pantry:
- Additional storage room
- Linens
- Serving ware
- Dry goods
- Formal Dining Room
- Breakfast Room
- Fitted cabinetry
- Sun filled morning light
- Master Suite
- French doors to porch
- Two fitted walk-in closets
- Master Bath:
- Two vanities
- Shower
- Tub
- Tile and marble finishes
- Fully fitted separate His and Hers walk-in closets
- Vestibule with linen storage
- Study:
- South facing sunning porch
- Guest Wing
- Sunroom Gallery
- Overlooks pool and courtyard
- Two en-suite bedrooms
- Additional In-House Guest Suite
- Media Room, bedroom, adjacent bathroom
- Mud & Laundry Rooms
- Access to raised bed kitchen garden
- Storage for pool supplies and towels
- Covered porch for garage access
- 3 bays with 10' tall automatically controlled roll up
doors
Additional Residential Structures
- 2nd Residence
- Living room with fireplace
- Dining room
- Kitchen with breakfast nook
- Two bedrooms
- One bathroom
- "Bunk House" Living room
- Kitchenette (microwave and sink only)
- Two bedrooms
- One bathroom
Facilities
- "Old Hay Barn” - Events Area
- Dining and Ball Room Finished Center Corridor
- Bar with siding door opening to lawns and historic oak for outdoor
entertaining
- Three Horse Stalls
- Equipment storage bays
- "Center-isle Horse Barn
- Four stalls with turn outs
- Feed and tack rooms
- Wash rack
- Hot Walker
- 250’ x 125’ Roping Arena with complete setup
- 300’ x 100’ Three Irrigated Horse Pastures
- Fenced and cross fenced pastureland
All Information Deemed Reliable, But Not Guaranteed